Prisma
Année
2025
Ville
Saint-Cloud (92)
Budget
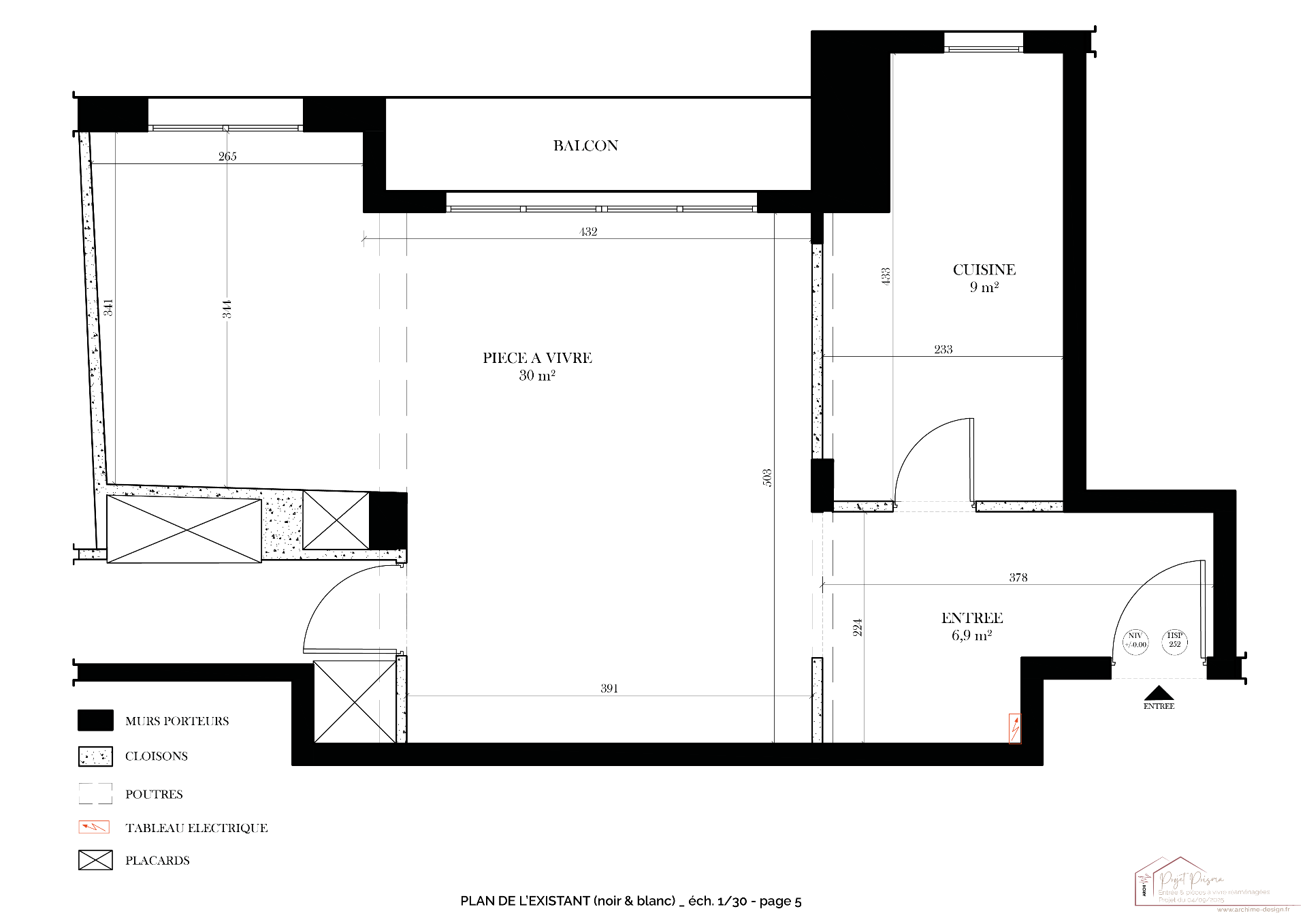
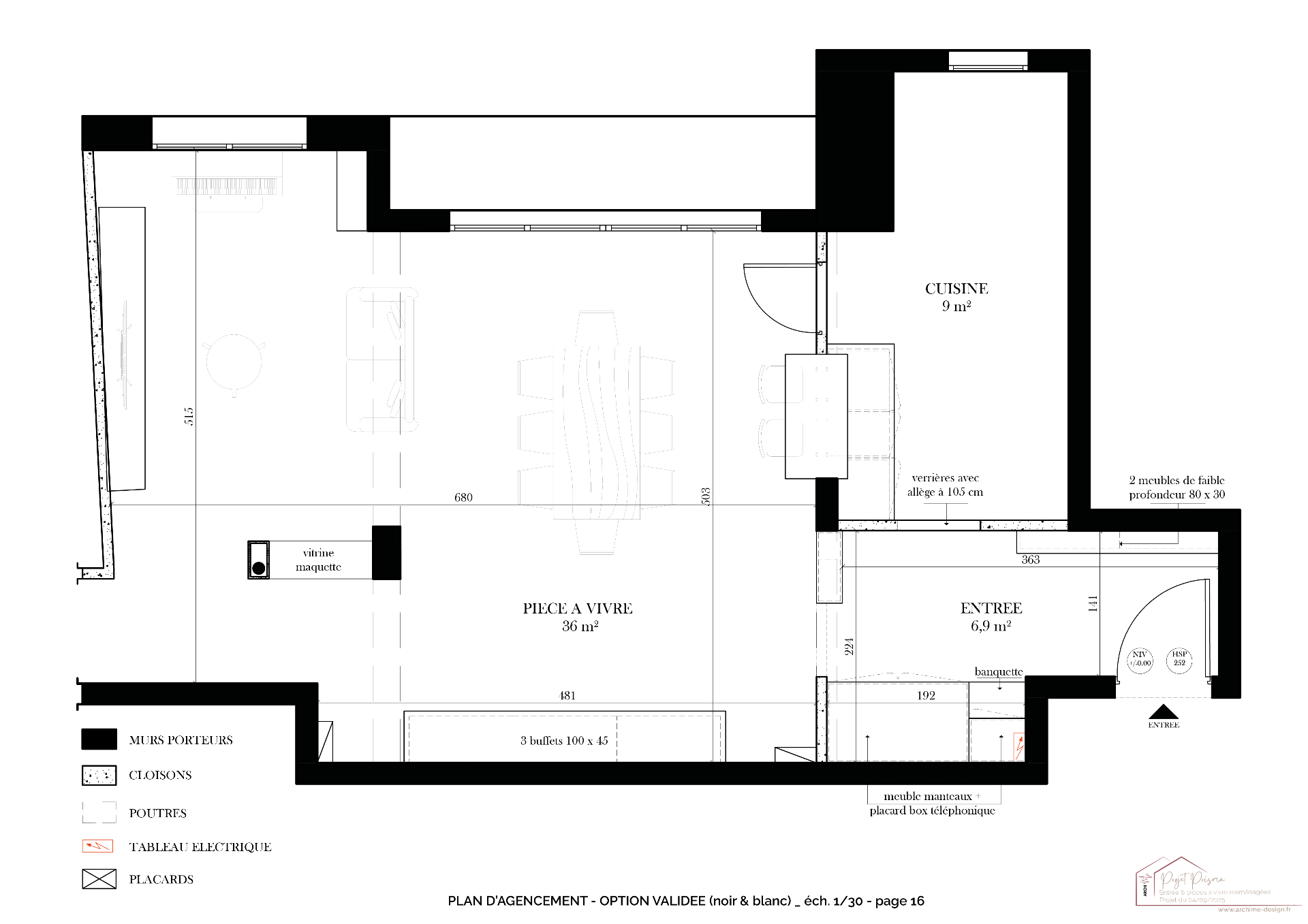
Cet appartement familial de Saint-Cloud fait l’objet d’une réflexion autour de trois espaces principaux : l’entrée, le salon et la salle à manger.
Ma mission est d’accompagner la cliente dans la visualisation de son projet de rénovation en transposant ses idées sous forme de plans techniques et de visuels 3D, afin de faciliter la projection avant travaux.
Les clients :
Une famille de 4 personnes (couple quadragénaire avec deux garçons de 8 et 6 ans).
Le style recherché :
Chaleureux, mettant en valeur le bois. Le couple aime les tonalités chaudes comme le terracotta, et possède des objets décoratifs africains (les parents de monsieur ayant vécus en Afrique).
Besoins exprimés :
• Créer une semi-ouverture entre la cuisine et la salle à manger (installation d’une verrière).
• Réduire la superficie de l’entrée jugée trop vaste.
• Agrandir le salon par la suppression d’une cloison.
Attentes principales :
• Pouvoir se projeter grâce à des visuels 3D fidèles à leurs idées.
• Disposer de plans techniques précis pour guider les artisans.








Retours clients
Ils m’ont fait confiance, voilà ce qu’ils en disent
Témoignages – Ils ont repensé leur intérieur dans le 92
Studios repensés, cuisines optimisées, salons transformés…
Chaque projet part de là où tu en es : tes besoins, tes contraintes, tes envies.
Que ce soit à Nanterre, Suresnes ou ailleurs dans les Hauts-de-Seine, on imagine ensemble des intérieurs pensés pour mieux vivre avec l’existant.
